201 Ross Dr SW, Vienna VA 22180

  • This home is another luxurious, pre-construction home presented by Verity Builders. The residence at 201 Ross Dr in Vienna, VA, features ~6,700 finished sqft across four levels. The main level features 10’ ceiling with 8’ doors. The home’s exterior features a clean-line finish that perfectly balances simplicity and sophistication through using contrasting colors and materials.

    The home offers an inviting two-story foyer with impressive feature-wall details connecting to a contemporary master-work staircase. The entrance corridor connects the dining room, the living room, the family entrance, and a first-floor suite that can serve as either a bedroom or an office. The well-appointed gourmet kitchen features a large center island, ample counter and cabinet space, and bright casual dining area. The kitchen is appointed with top-line appliances that both look and work spectacularly.

    There are four bedrooms on the second level. The spacious primary bedroom suite includes a comfortable owner’s retreat area with a wet bar and a dedicated seating area. The deluxe primary bath is appointed with dual vanities, a free-standing tub, a deluxe glass-enclosed shower with a seat, dressing areas, a linen closet, and a private water closet. There is another junior suite, and two bedrooms that share a jack-and-jill bathroom.

    The loft level offers one additional bedroom, a full bath and an expansive open space for entertainment.

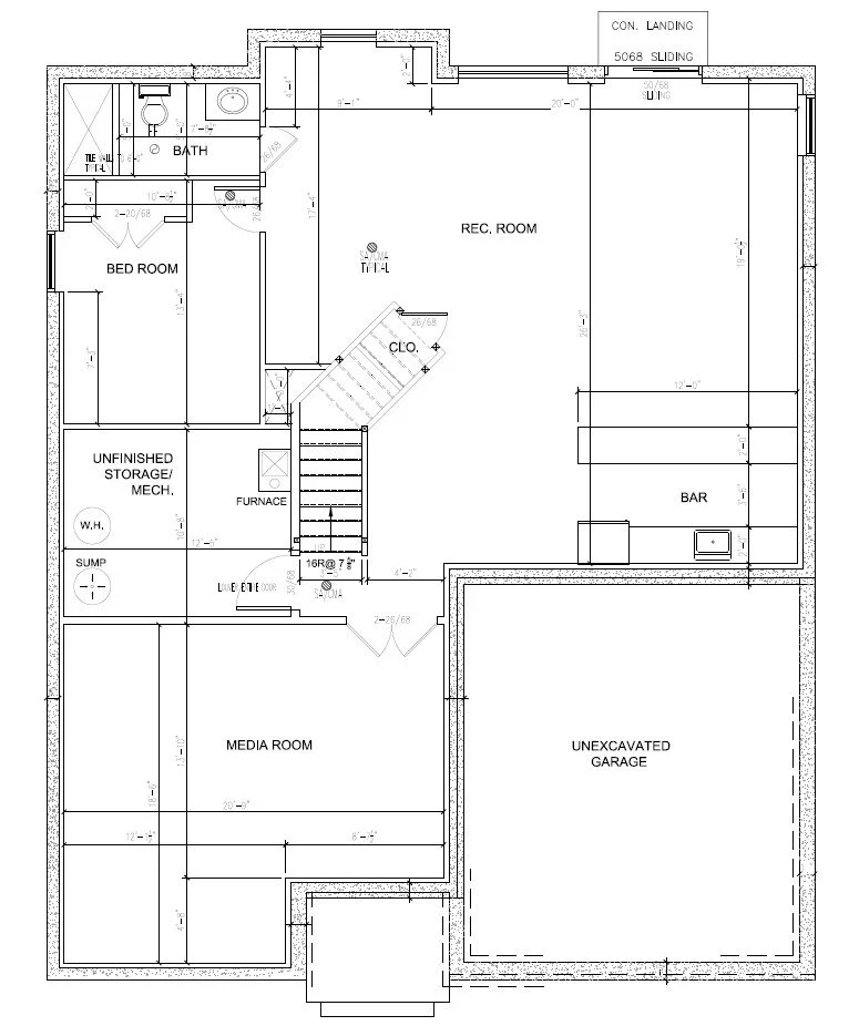
    The lower level has ample windows to bring in natural light and walks directly out to the beautiful backyard, which overlooks a stream behind the property line. The lower level also features a finished bedroom with a full bathroom, a media room (that can be finished as a gym), and a wet bar in the main recreation space.

7 Bedroom/6.5 Bathrooms

  • Three Stories Above Grade

  • Size: 6,694 SQFT

    • 5,042 SQFT Above Grade

    • 1,652 SQFT Below Grade

Contact us for more info.

Main Level - 1,716 SQFT

Loft Level - 1,200 SQFT

2nd Level - 2,126 SQFT

Lower Level - 1,652 SQFT